
Rodinný dům pro mladou rodinu

Dům disponuje prostorným pozemkem, ideálním pro rodiny s dětmi nebo ty, kteří si chtějí užívat venkovský životní styl. Zahrada poskytuje prostor pro relaxaci a odpočinek, zatímco v blízkosti se nacházejí přírodní rezervace a cyklostezky, ideální pro milovníky outdoorových aktivit.
Samotný dům je vkusně zařízený a nabízí veškerý komfort moderního bydlení. S rozsáhlými interiéry a kvalitním vybavením vytváří příjemné prostředí pro celou rodinu. S obchody, školami a veřejnou dopravou v dosahu se stává toto místo skvělou volbou pro ty, kteří chtějí spojit pohodlí městského života s klidem venkova. Nechte se okouzlit půvabem Oleška a zažijte dokonalou symbiózu mezi městem a venkovem.





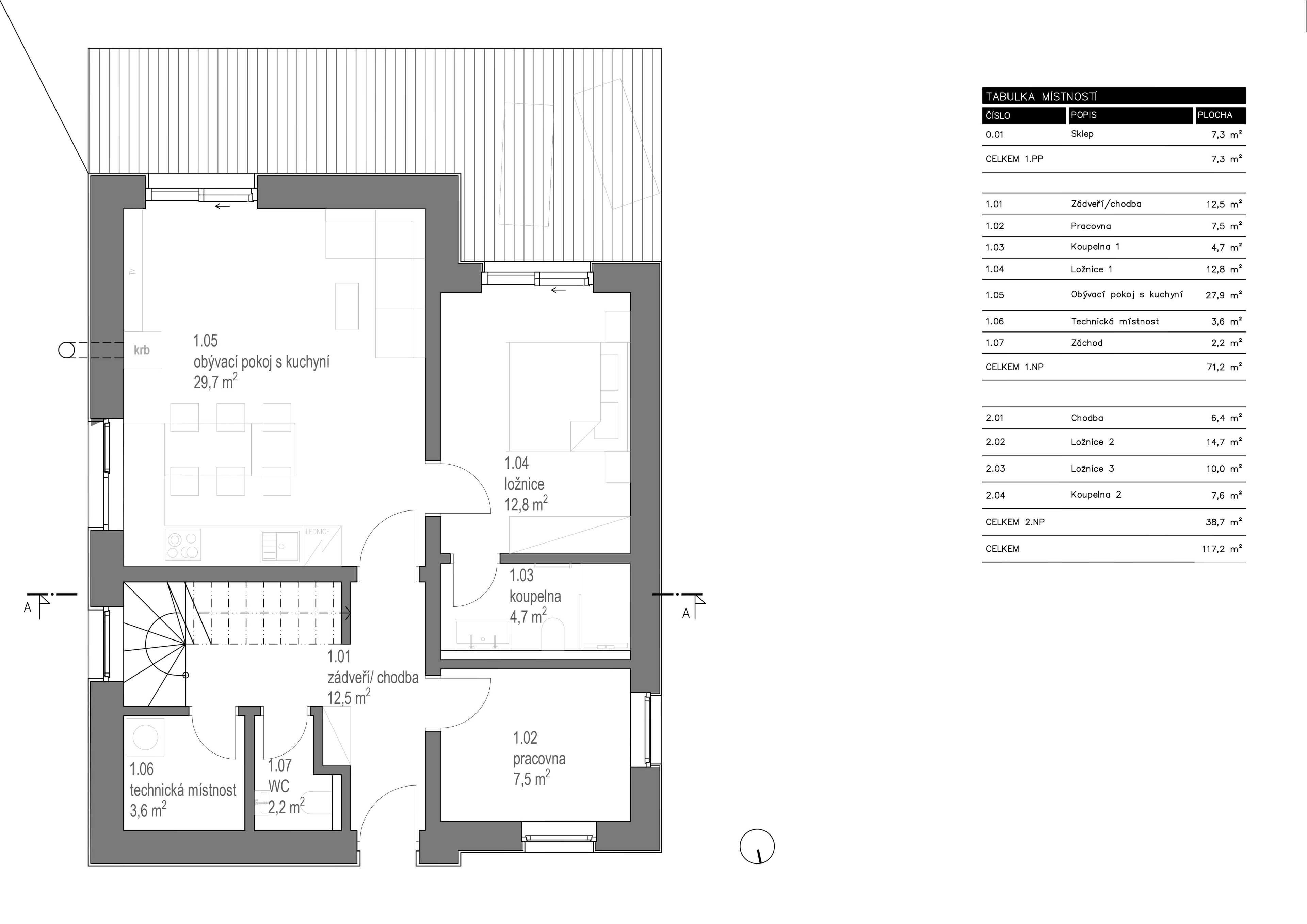
Přízemí
Vstupte do světa pohodlí a moderního bydlení, když vkročíte do přízemí tohoto krásného rodinného domu v obci Oleško. Obývací pokoj spojený s kuchyní tvoří srdce domu, nabízející prostorný a otevřený prostor pro rodinná setkání a večírky s přáteli. Ložnice poskytuje soukromý azyl pro klidný odpočinek, zatímco pracovna umožňuje efektivní práci bez nutnosti cestovat do města. Koupelna, technická místnost a WC dodávají praktický komfort každodenního života.

Energetická náročnost a vybavení
Tento rodinný dům je navržen s ohledem na energetickou úspornost, což znamená nižší náklady na provoz. Krb, rekuperace, podlahové vytápění a dřevo-hliníková okna přidávají do domu teplý a příjemný pocit. Podlahy z dřevěných lamel a keramická krytina v sociálním zázemí dodávají domu elegantní a moderní vzhled.

Exterier
Dvoupatrový dům v obci Oleško zaujme svým venkovským šarmem, zvýrazněným dřevěným obložením fasády. Celý dům je obklopen pozemkem o velikosti 501m2, na kterém si můžete užívat soukromí a klid. Kromě toho budete mít k dispozici 2 parkovací stání, což je velkým bonusem. Částečně podsklepený objekt o objemu 7,3m3 poskytuje dostatek úložného prostoru. Součástí prodeje je i finální podoba zahrady, která bude lákavým místem pro odpočinek a rodinné aktivity.

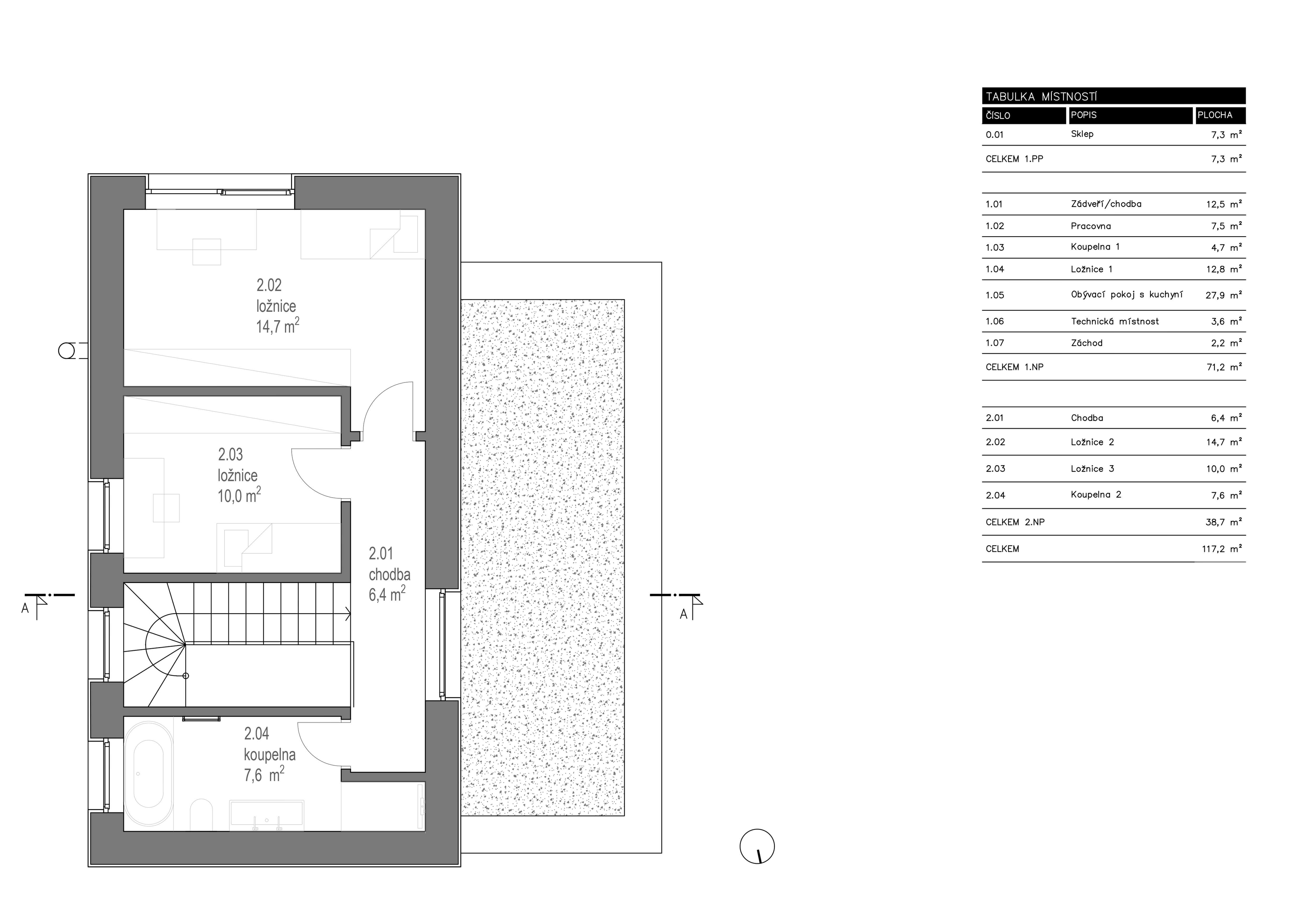
Patro
Na prvním patře domu najdete dvě prostorné pokoje, které nabízejí dostatek prostoru pro pohodlný život. Koupelna s WC zajišťuje pohodlí a soukromí pro obyvatele tohoto patra. Díky inteligentnímu uspořádání poskytuje první patro ideální prostředí pro klidné spaní a relaxaci.